Rif: MC3914 - Capannone in Affitto a Piacenza
1.100 €
-
- Piacenza, Piacenza
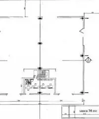
MONTALE - Lottizzazione Mirandola, CAPANNONE di nuova costruzione di mq 800 frazionato in 2 unità da 400mq cad con uffici e servizi. In fase di realizzazione con possibilità di completamento in funzione delle richieste del conduttore. Euro 1100 + iva mensili CAD. Consegna 8 mesi dalla prenotazione. Certificazione Energetica "Non classificabile" - Immobile in fase di realizzazione
Contatta
Nome: Agenzia
1.100 €
Invia messaggioSolo per utenti registrati Inserito il 2022/07/04
Aggiungi un commento pubblico...
Annunci correlati
-
Rif: MC271015 - Magazzino in Affitto a Piacenza
450 € Uffici e Locali commerciali Piacenza (Piacenza) 2022/07/04VIA MANFREDI - Adiacente al supermercato Esselunga, LABORATORIO/MAGAZZINO di mq 130 con comodo acces...
-
Rif: MC27716 - Capannone in Affitto a Piacenza
1.700 € Uffici e Locali commerciali Piacenza (Piacenza) 2022/07/04PIACENZA SUD - Nella zona industriale della Caorsana, in prossimità del casello autostradale di Piac...
-
Rif: MC18215 - Magazzino in Affitto a Piacenza
1.500 € Uffici e Locali commerciali Piacenza (Piacenza) 2022/07/04LAT. VIA COLOMBO - Magazzino ad uso ARCHIVIO completamente scaffalato e a norme antincendio per lo s...


