Monterotondo Scalo: Affitto Capannone in via Leonardo Da Vinci
- 
          - Monterotondo, Roma
 
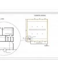
Monterotondo Scalo (RM) zona industriale complesso immobiliare composto lotto di terreno di Mq 30.000 c.a. con sovrastante complesso immobiliare suddiviso in due unità. La porzione offerta in locazione ha una superficie di Mq 4.182 c.a. con altezza m 10, n°4 portoni a raso, banchina di carico lunga m 50 con tettoia e n°3 portoni. Il canone di locazione richiesto è di Euro 4,00/mq/mese Per ulteriori informazioni e sopralluoghi contattare il sig. Stefani al numero 334 1317700 AFFITTARE o VENDERE un immobile è facile se ti affidi ai professionisti del settore!!!!! Chiamaci ai numeri 0774 37 70 19 - cell 334 131 77 00 La nostra divisione intermediazione immobiliare offre tutti i servizi necessari al proprietario, per la commercializzazione del proprio immobile, ed all'utilizzatore, per la ricerca dell’immobile adatto alle sue esigenze. Svolgiamo attività di consulenza rivolta alla compravendita, locazione e valutazione di immobili industriali, commerciali, uffici e residenziali. In particolare: • Uffici: attività rivolte a imprese del settore terziario per la ricerca, l'acquisto, la vendita e la locazione di immobili ad uso ufficio. • Industria: attività rivolte a imprese del settore industriale, logistico e produttivo per la ricerca, l'acquisto, la vendita e la locazione di aree e immobili strumentali. • Retail: servizi e attività a imprese del settore commerciale per la ricerca, l'acquisto, la vendita e la locazione di immobili destinati ad attività commerciali quali negozi, catene di punti vendita, centri commerciali, che implicano un contatto diretto con il pubblico. I nostri principali servizi: Servizi dedicati al proprietario • valutazione dell'immobile • reperimento documentazione presso gli Enti preposti • ricerca di acquirenti e/o conduttori • sviluppo dei contatti • conduzione delle trattative e assistenza fino alla sottoscrizione dei contratti Servizi dedicati all'utilizzatore • analisi delle esigenze e di mercato • individuazione dell'immobile • conduzione delle trattative e assistenza fino alla sottoscrizione dei contratti Codice di Riferimento Agenzia: (1568019)
Contatta
Annunci correlati
- 
    Monterotondo Scalo: Affitto Capannone da 850mq4.000 € Uffici e Locali commerciali Monterotondo (Roma) 2022/07/02MONTEROTONDO - ZONA INDUSTRIALE - Proponiamo la locazione di capannoni industriali in cemento, altez... 
- 
    Monterotondo Scalo: Affitto Capannone in Via Thomas Bell14.000 € Uffici e Locali commerciali Monterotondo (Roma) 2022/07/02MONTEROTONDO - ZONA INDUSTRIALE - Proponiamo la locazione di capannoni industriali in cemento, altez... 
- 
    Montelarco: Vendita Magazzino in Via Bramante79.000 € Uffici e Locali commerciali Rignano Flaminio (Roma) 2022/07/02Rignano Flaminio - Via Bramante vendesi un magazzino di mq . 230 con rampa carrabile di 80 mq circa.... 
 
  
 

