Affitto Capannone in Contrada Macchia, 0
-
- Tito, Potenza
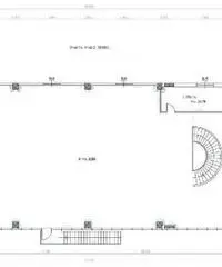
Tito, a soli 1,5 Km dallo svincolo del Raccordo Autostradale A5 Potenza - Sicignano innesto A3 e con ottima visibilità da entrambre le carreggiate del tratto Potenza - Tito, struttura a destinazione commerciale disposta su 2 livelli, collegati internamente da una scala, per complessivi mq. 1.000 circa con area di mq. 1.200 circa destinata a parcheggio ed area di mq. 2.000 circa di piazzale fronte autostrada. Ottime rifiniture interne ed impianto di riscaldamento con pannelli radianti a pavimento. Possibilità di locazione frazionata in 2 unità con ingressi autonomi. Anche in vendita. Codice di Riferimento Agenzia: 159-06ACG
Contatta
Annunci correlati
-
Monopattino elettrico a quattro ruote con certificazione CE
450 € Uffici e Locali commerciali Napoli, ITA (Napoli, ITA) 2025/06/17Motopattino elettrico a quattro ruote con certificazione CE. Capacità di salita: 13 gradi. Capacità ...
-
Attività Commerciale, Gelateria. Fano
110.000 € Uffici e Locali commerciali Fano (Pesaro e Urbino) 2025/02/17Attività commerciale di gelateria composto da ingresso su balcone, laboratorio, scoperto esterno e b...
-
Ufficio 3 ambienti in Via degli Orti Villabianca
67.000 € Uffici e Locali commerciali Palermo (Palermo) 2025/02/16Proponiamo in vendita un ufficio situato nella prestigiosa zona residenziale di Don Bosco - Villabia...


