Affitto Capannone da 864mq
5.000 €
-
- Segrate, Milano
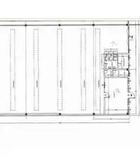
Nel Comune di Segrate in prossimità della SP103 Cassanese, disponiamo in affitto di un capannone industriale in ottime condizioni di 865 mq compsto da 768 mq di produttivito e 60 mq di uffici oltre servizi con un altezza di 7,35 metri. LIBERO SUBITO! Codice di Riferimento Agenzia: 5576
Contatta
Nome: Agenzia
5.000 €
Invia messaggioSolo per utenti registrati Inserito il 2022/07/04
Aggiungi un commento pubblico...
Annunci correlati
-
Affitto Capannone da 856mq con ascensore
6.491 € Uffici e Locali commerciali Pero (Milano) 2022/07/04Affitta a Pero, Capannone con uffici, mq. 856 ca. Canone annuo Euro. 77.896,00 (pari a ca. 6.491,00 ...
-
Affitto Capannone da 800mq
2.500 € Uffici e Locali commerciali Segrate (Milano) 2022/07/04NELLE IMMEDIATE VICINANZE DELLA CASSANESE,CAPANNONE INDUSTRIALE DI 500 MQ , UFFICI DI 200 MQ, MAGAZZ...
-
Affitto Capannone da 800mq
2.500 € Uffici e Locali commerciali Segrate (Milano) 2022/07/04NELLE IMMEDIATE VICINANZE DELLA CASSANESE,CAPANNONE INDUSTRIALE DI 500 MQ , UFFICI DI 200 MQ, 100 DI...


